Attefallshus 29,9 m² är ett knuttimrat hus med 3 rum + Loft (21,7 + 8,2 m²) och 44 mm tjocklek på timret. Detta hus ger dig ett allrum på 13,8 m² med möjlighet att inrymma en kokvrå, samt två rum på 3,2 m² samt 4,7 m² som passar som toalett & sovrum. 4 st 2-glasfönster och 2 st innerdörrar ingår i byggsatsen. Attefallshuset kommer i byggsats med byggbeskrivning. Tillverkad av Nordisk gran.
Timmertjocklek: 44 mm
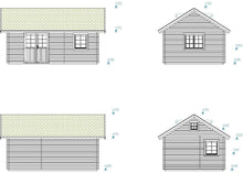
Utvändigt mått på väggar: 585 cm x 390 cm
Längd på timret: 605 x 410 cm
Total höjd: 370 cm
Invändig area: 29,9 m² (21,7 + 8,2 m²)
Taköverhäng: 40 cm
Takarea / Taklutning: 37,7 m² / 32,1°
Takbräda: 19 mm
Golvbrädor: 19 mm
Storlek på paket vid leverans: Pkt 1: 6,9 m x 1,2 m x 0,5 m Pkt 2: 6,0 m x 1,2 m x 0,9 m
Vikt på paket: Pkt 1: 1000 kg Pkt 2: 1300 kg
Väderskydd till tak är ej inkluderat (kan köpas som tillval) Till denna modell, välj: 8 st Underlagspapp (á 10 m) + 8 st Ytpapp (á 10 m) ELLER 15 pkt Takshingel.
OBS! Levereras obehandlad.
Dela upp din betalning
Tillsammans med Wasa Kredit erbjuder vi dig ett smart sätt att dela upp din betalning. Istället för att betala allt på en gång betalar du ett mindre belopp varje månad. Prata med oss så berättar vi mer.

Byggd för svenska förhållanden
Materialval, konstruktion och finish som tål säsong efter säsong.




