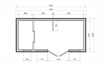
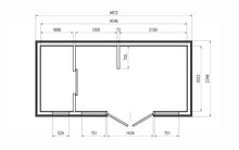
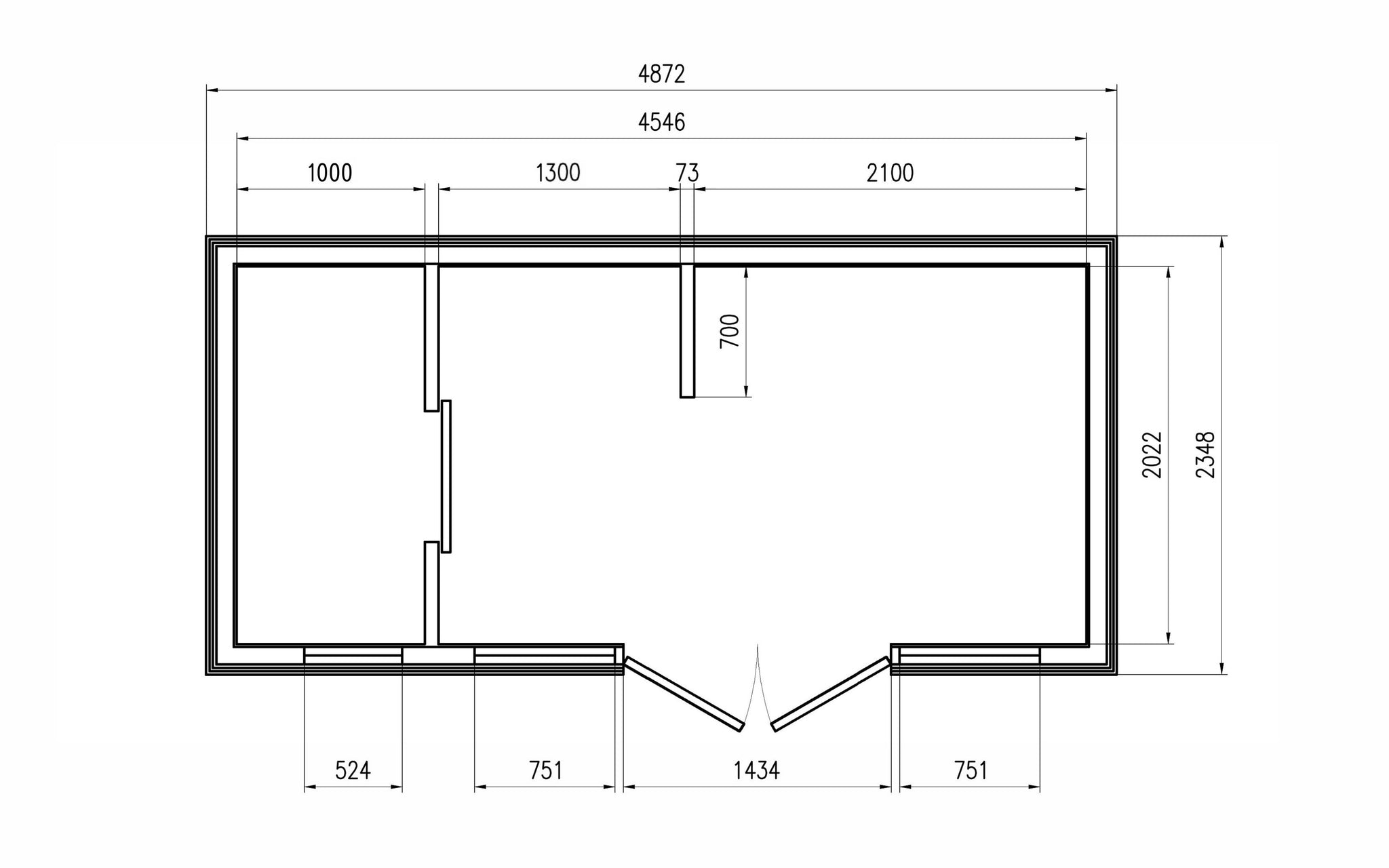
Friggebod 11,4 m² är en nyckelfärdig friggebod och kommer färdigmonterad. Förbered en grund, ställ den på plats, koppla in inkommande ström och den är redo att inredas enligt dina behov. Perfekt som gästhus, tonårsrum eller kontor. Friggeboden har 2 st rejäla två-glas fönster (4-16-4) och en rejäl dubbeldörr med två-glas fönster (4-16-4) samt ett öppningsbart fönster (410 mm x 1150 mm) Eldragning är klar, med utvändig ledlist (ca 4 m) invändiga lampor (4 st) uttag (7 st) och strömbrytare inkopplat. Takränna är inkluderad och monteras av kund. Friggeboden kommer även med planlösning förberedd för badrum/ toalett, samt vägg för t.ex. kokvrå eller köksbänk med kyl. Inredning i badrum och kök ingår ej.
Specifikation:
Utvändigt mått: L: 4,9 m x B: 2,3 m
Invändig yta: 9,19 m²
Friggeboden är uppbygd på följande sätt:
Väggar:
Isolering: 100 mm (stenull)
Panel täckt med invändig 14 x 96 mm och utvändig 18 x 145 mm furubeklädnad.
Tjocklek på färdigt väggsegment: 145 mm.
Golv:
Utsida - DURELIS TG / Fuktbeständig spånskiva -12 mm Furugolvbrädor inifrån: 28 mm
Strukturstomme i furu: 45 x 120 mm
Stenullsisolering: 120 mm
Total tjocklek på golv: 158 mm Linoleum klickgolv invändigtTak:
Invändig furupanel 14 mm,
Bärande furustomme 45x95 mm
Ångspärrfilm
Stenullsisolering 100 mm
Diffusionsfilm
Utvändig - DURELIS TG / Fuktbeständig spånskiva -12 mm
Takpapp (Bitumen)
Fönster bredvid dörren 2 x 735x1955 mm
Dörrstorlek: 1480 x 2000 mm
Obs! Levereras obehandlad. Ytbehandling kan köpas till (+9486 kr)
Dela upp din betalning
Tillsammans med Wasa Kredit erbjuder vi dig ett smart sätt att dela upp din betalning. Istället för att betala allt på en gång betalar du ett mindre belopp varje månad. Prata med oss så berättar vi mer.

Byggd för svenska förhållanden
Materialval, konstruktion och finish som tål säsong efter säsong.








